Maîtrise d’ouvrage :
Franco Suisse Deux lacs
Maîtrise d’œuvre :
D&A, architecture - paysage
BA+, bet structure
Bénefficience, bet fluides et thermique
Mission :
Conception de maîtrise d'oeuvre
Surface :
3 457m² sdp
Calendrier :
PC 2017 > Chantier 2020-2022
Programme :
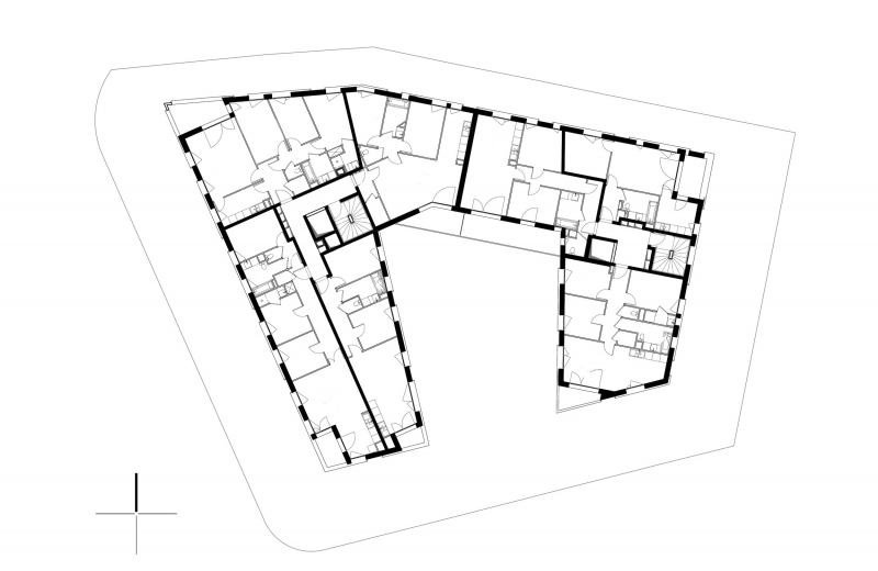
47 logements et crèche
Montant des travaux :
4,5 M€ HT
Certification :
NF Habitat
Entre la rue de Genève qui s’apprête à recevoir le tramway et la voie verte qui accueille le CEVA et à proximité de la ZAC Annemasse Etoile dont l’agence est urbaniste, le terrain du projet se trouve dans un secteur en profonde mutation. Le projet s’insère ici dans un diffus en rapide transformation, dans lequel il s’agit de réintroduire du sens.
Au Sud, la rue de Genève, un bâti R+6 continu ; au Nord, le parc de la paroisse, une ouverture sur le paysage des reliefs du Jura ; plus généralement un tissu pavillonnaire qui possède comme qualité d’offrir un cadre de vie très végétal.
Notre projet propose de composer à partir de ces trois échelles un bâtiment « rotule » qui s’organise autour de deux émergences. Il se fait écho des avoisinants et instaure un dialogue avec son environnement.
Un bâtiment R+6 poursuit le gabarit de la rue de Genève, il s’abaisse ensuite à R+3 où un porche mène vers la crèche, cette inflexion du volume découpe une césure sur le ciel. Face au creux du parc de l’église s’élève un volume R+9 qui répond au vide et s’adresse au grand paysage.
Cette échancrure dans la volumétrie organise des logements qui sont tous à double orientation et en profite pour aller chercher des vues lointaines. La finesse du bâti permet d’éclairer la quasi-totalité des pièces d’eau.



