Aller au contenu principal
  • Accueil
  • Projets
    • Tous nos projets
      • La carte des projets
    • Territoires & Mobilité
    • Projets urbains
    • Architecture
    • Paysage
  • Agence
    • L'agence
      • L'équipe
      • Les associés
      • Christian Devillers Fondateur
  • Actualités
  • Contact

D&A
+33 1 40 09 64 24
10, villa Nieuport
75013 Paris

Transports
Vélib

Navigation principale

  • Projets
    Tous nos projets
    • La carte des projets
    Territoires & Mobilité
    • Métropoles
    • Villes
    • Mobilité
    Projets urbains
    • Ecocités, Ecoquartiers
    • Renouvellement urbain
    • Activité, Grands Equipements, Enseignement
    Architecture
    • Logements
    • Bureaux
    • Équipements
    • Réhabilitation
    • Programmes mixtes
    Paysage
    • Espaces publics
    • Infrastructures linéaires
    • Jardins et parcs
    • Ouvrages d’art
  • Agence
    L'agence
    • L'équipe
    • Les associés
    • Christian Devillers Fondateur
  • Actualités
  • Contact
Launcer une recherche

Tous nos projets

  • Tous

TOULOUSE - CEAT - ZAC GUILLAUMET - ILOT O – LA HALLE AUX CHEMINEES

Le projet de la halle occupe une place singulière au cœur du jardin central, espace vert majeur du quartier Guillaumet. Il accueille un prog...

Découvrir le projet

Nice Méridia

L'EcoQuartier Nice Meridia est une opération prioritaire de l'Ecovallée Plaine du Var (étape 2 de la labellisation)...

Découvrir le projet

Jardin des Facultés (ZAC) – Saint-Maur-des-Fossés

Le futur écoquartier conjugue activités, éducation, sport, jeunesse, intergénérationnel, services de proximité, commerces et logements diver...

Découvrir le projet

Besoins en mobilité à Grand Paris Grand Est

D&A interroge avec Grand Paris Grand Est la cohérence entre projets de transports, besoins de mobilités et projets d’aménagement urbain à l’...

Découvrir le projet

Houdan La Prévôté

182 logements (128 collectifs et 54 maisons + 1 salle associative 100m²) autour d’un parc d’1 hectare...

Découvrir le projet

Place ViaSilva – Cesson-Sévigné

Cette place constitue le centre du nouveau quartier Viasilva. Urbaine et arborée, elle propose un vaste espace ouvert à de multiples usages....

Découvrir le projet

ZAC DE LA CONSTANCE

Un projet aixois à part entière, pénétré des spécificités de cette ville, son ambiance, sa cohérence, la couleur de ses pierres, la minérali...

Découvrir le projet

Plan guide de la ville de Poissy

Les nouveaux projets de transport renforceront l’attractivité de la ville et renforceront le lien avec Paris et la Défense. Comment se servi...

Découvrir le projet

Toulouse - CEAT - ZAC Guillaumet - Ilot C1

C’est au cœur du nouvel écoquartier de la ZAC Guillaumet prenant place sur l’ancien site du CEAT à Toulouse-Jolimont que s’inscrit le projet...

Découvrir le projet

Montpellier – ZAC du Coteau

Les quartiers Malbosc, dont le projet porte sur l'extension s’arrimera à une grande terrasse ouverte sur le paysage et cultivera son cœur pa...

Découvrir le projet

Port atlantique la Rochelle

La gentrification du quartier de la Pallice rend plus difficile l’acceptabilité du Port de Commerce par les habitants. Une acceptabilité rem...

Découvrir le projet

Prospective urbaine Fresnes 2030

Quels objectifs se fixer pour encadrer les opérations d’aménagement à venir et proposer de nouvelles perspectives de développement à l’horiz...

Découvrir le projet

Le nouvel écoquartier Guillaumet à Toulouse

Situé sur l’axe majeur est de Toulouse, le nouvel écoquartier ouvre les murs de l’ancien Centre d’Études aéronautiques. L’espace public s’ét...

Découvrir le projet

Etude de restructuration urbaine du secteur les Beugons

Dans la métropole de Marseille, la pression foncière est telle qu’il est difficile d’observer des coupures agricoles et naturelles. Pourtant...

Découvrir le projet

Bordeaux - Écoquartier Ginko - Ilot B2.1 - Elya

Cet îlot de 114 logements illustre l’ambition développée par l’agence à l’échelle du quartier Ginko à Bordeaux. Il s’agit de mélanger des ma...

Découvrir le projet

Pôle gare Vitry-Centre

Les espaces publics existants autour de la future gare de Vitry-Centre ne sont pas dimensionnés pour accueillir les 5 500 visiteurs attendus...

Découvrir le projet

Vannes - Quai de la Rabine

L’opération s’inscrit dans un site exceptionnel face à la promenade de la Rabine donnant sur la Marle. Ancien terrain d’ENEDIS, il était fer...

Découvrir le projet

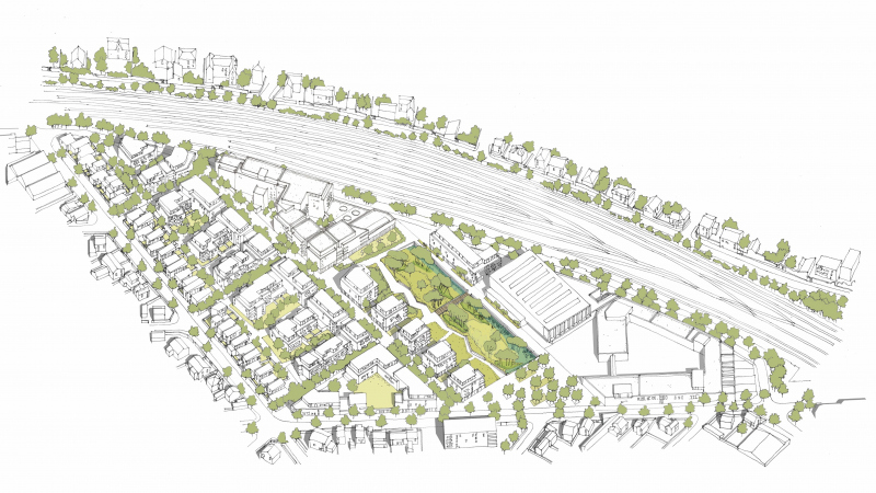
Le parc de la Soufflerie dans le nouvel écoquartier Guillaumet à Toulouse

Situé sur l’axe majeur est de Toulouse, le nouvel écoquartier ouvre les murs de l’ancien Centre d’Études aéronautiques. L’espace public s’ét...

Découvrir le projet

Etude de restructuration urbaine du secteur la Moute Nord

Comment faire lorsqu’un maire veut développer de l’activité et du logement dans une zone naturelle protégée ? Notre réponse : une urbanisati...

Découvrir le projet

Une « liaison nord » sur la Seine

Un bassin de vie de plus de 500 000 habitants s’est organisé de part et d’autres de la Seine, de Vitry à Créteil, en passant par Ivry. Le pr...

Découvrir le projet

Rosny-sous-bois - ZAC Coteaux Beauclair - Lot C2

Réalisation de 111 logements dont 40 sociaux et 2 commerces au sein de l’écoquartier Coteaux-Beauclair à Rosny. Bâtiment en gradin avec tram...

Découvrir le projet

Micheville

Le nouveau Micheville révèle un site profondément transformé par les anciennes usines....

Découvrir le projet

Les bassins de vie de l’agglomération et de l’aire métropolitaine Lyonnaise

L’agglomération lyonnaise est-elle multipolaire comme le propose le SCOT ? Les flux semblent tellement imbriqués que la question de la vali...

Découvrir le projet

Louvres - ZAC du parc

Implanté à la lisière du Parc Ricoeur sur lequel il s’ouvre, le projet, composé de deux bâtiments, préserve les arbres existants et le mur d...

Découvrir le projet

  • Voir plus de projets
  • Recherche
  • Architecture
  • Projets urbains
  • Paysage
  • Territoires & Mobilité
  • Tous

Contactez-nous

Email

D&A
+33 1 40 09 64 24
10, villa Nieuport
75013 Paris

Transports
Vélib

Adresse

NOS OFFRES D'EMPLOIS
Voir nos annonces de recrutement ›

Recherche

Mentions légales     |     D&A     |     Nos offres d'emploi     |     Cookies

Suivez-nous