Maîtrise d’ouvrage :
Compagnie Saint-Gobain
Maîtrise d’œuvre :
D&A, architecture
Ingérop, bet tce
A. Marguerit – paysagiste
R. Narboni – concepteur lumière
Mission :
Mission complète de maîtrise d’oeuvre
Surface :
7 880 m² shon
Montant des travaux :
10,6 M€ HT
Calendrier :
PC 2000 > DAT 2003
Programme :
Centre de recherche
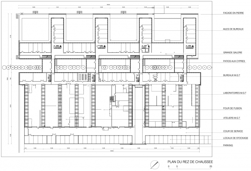
Le Centre de recherche et d’études européen construit pour Saint-Gobain est un lieu de travail à la fois rationnel et convivial. La qualité de sa lumière et de ses ambiances s’accorde à la beauté du paysage.
Construit au pied de l’exceptionnelle colline Saint-Jacques, le bâtiment s’étire sur toute la longueur du terrain, une fine galerie reliant le bâtiment principal au restaurant placé comme une dépendance à l’entrée. Tournant vers l’accès une figure en peigne dont les pignons de pierre dialoguent avec la falaise, le bâtiment principal se révèle un feuilleté de différentes strates : aux ailes de bureaux en acier verre et aluminium, calés derrière les stèles de pierre, succèdent les ateliers et laboratoires qui déploient leurs séquences amples et lumineuses sous de grands sheds ; la ligne franche et sobre des bâtiments de stockage clôt le tout.
Entre chaque strate bâtie, des espaces extérieurs – une ruelle et une ligne de patios enserrant les cyprès qui servaient de brise-vent -, assurent une interface entre les différents types d’activité. Ils répondent à la volonté de faire cohabiter efficacement les techniciens spécialisés effectuant les essais et le personnel des bureaux qui pilote les programmes de recherche.
La qualité des matériaux scelle l’harmonie avec le site : tôle métallique revêtue de cuivre pour les ateliers, dalles de terre cuite sur plots en toiture des bureaux, pierre de Beaulieu massive. Pour « rentrer dans les prix » (1148 euros/m2), cette pierre a été prélevée sur le lit supérieur de la carrière – dit « pierre de découverte ».










