Maître d’ouvrage :
OTI Groupe Legendre
Maître d’oeuvre :
D&A, architecture - paysage
Legendre, bet structure
Lemonnier, économiste
Icofluides, bet fluides
Mission :
Mission complète de maîtrise d’oeuvre
Surface :
18 925 m² shon
Montant des travaux :
26,5 M€ HT
Calendrier :
PC 2011 > DAT 2014
Programme :
Laboratoires et bureaux
Certification / label :
BBC (Bâtiment Basse Consommation)
Prix :
Grand Prix SIMI 2013 - catégorie Immeuble Mixte
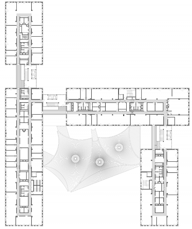
Le centre de recherche et développement pour Technicolor se déploie autour d’une grande cour ouverte au Sud contenant les espaces de convivialité : cafétéria, terrasse extérieure, jardins plantés avec des bassins d’eau.
Ce forum est un espace sécurisé entouré du « cloître » lieu de déambulation qui dessert les noyaux de circulations verticales. Le relief du terrain lui assure une vue sur le paysage de la vallée de la Vilaine.
Le projet doit satisfaire aux exigences de sécurité tout en proposant des accès commodes aux 900 personnes employées et aux visiteurs.
La principale qualité d’un espace dédié à la recherche est la flexibilité. L’organisation spatiale des bâtiments doit permettre la transformation rapide des pôles (extension, réduction, changement de matériel...) et la reconfiguration quasi instantanée des plateaux où les équipes travaillent par projet. En d’autre terme, les bureaux cloisonnés ou non, les salles de réunions, les salles spécialisées, les laboratoires doivent pouvoir être interchangeables et déplaçable dans n’importe quel coin du centre de recherche. En outre, dans le cas de Technicolor-Rennes des bâtiments ou des parties de bâtiments doivent pouvoir être loués à d’autres entreprises sans affecter le fonctionnement et la sécurité du centre.








