Aménageur :
EPA plaine du Var, Eco-vallée
Maître d’ouvrage :
BPD Marignan
Maître d’oeuvre :
D&A, urbanisme - architecture - paysage
Inex, bet tce
Mission :
Etudes au niveau esquisse
Surface :
8 052 m² sdp
Montant des travaux :
16 M€ HT
Calendrier :
Coucours 2017
Programme :
Bureaux
Certifications / labels :
Label BEPOS-Effinergie 2013, HQE, Cadre de Référence pour la Qualité Environnementale pour l’Éco-Vallée de la Plaine du Var
Ce projet a été conçu à partir d’une double intention :
- Être une réponse appropriée à sa situation urbaine dans le projet de la technopôle Méridia.
- Mettre en œuvre les solutions génériques qui s’appliqueront aux bâtiments tertiaires en climat méditerranéen.
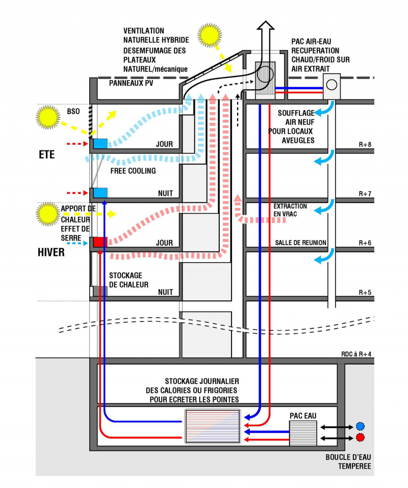
Dispositifs thermiques principaux :
- Suppression du double flux : l’air est extrait en vrac naturellement par convection renforcée. La chaleur, ou le froid, sont récupérés en toiture par des pompes à chaleur. L’air neuf est pris en façade.
- Suppression des faux-plafonds : l’absorption acoustique est réalisée par des îlots suspendus à 20 cm de la dalle.
- Suppression des faux-planchers : les distributions des courants forts et faibles sont réalisées en plinthes.
- Production de chaleur et de froid en stockage journalier : les pompes à chaleur produisent de l’eau chaude, ou froide, qui est envoyée dans des cuves de stockage.
- Une façade industrialisée qui incorpore toutes les fonctions : prise d’air neuf, batterie chaud-froid, brise-soleil orientable et rétractable, et ouvrant assurant la ventilation dite « de confort » et le free-cooling nocturne.
Flexibilité :
Réorganisation, coworking, divisibilité en petites surfaces, le projet est conçu pour accueillir les modes de travail de demain.
Réversibilité :
L’immeuble peut également être occupé par des logements car il n’a ni faux-plancher, ni faux-plafond, ni gaine de soufflage.











