Maîtrise d’ouvrage :
Arc Promotion
Maîtrise d’œuvre :
Christian Devillers Architecte
CVC - ADC, bet structure
Bethac, bet fluides, thermique et environnement
AEI, économiste
Mission :
Mission complète de maîtrise d'oeuvre
Surfaces :
Logements 4 012 m² shon
Commerces 802 m² shon
Montant des travaux :
4,5 M€ HT
Calendrier :
PC 2004 > DAT 2007
Programme :
44 logements
Certification / label :
Habitat & Environnement
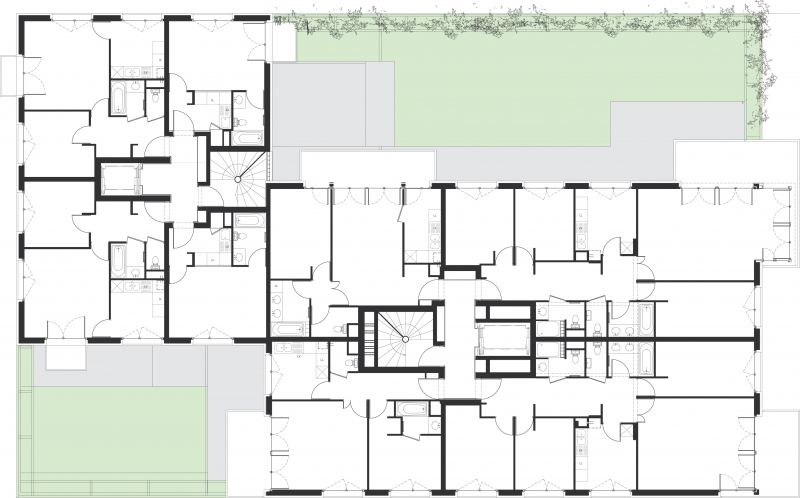
Conformement aux exigences du cahier de charges du secteur Massena, coordonné par Christian de Portzamparc, l’immeuble est composé de trois volumes : un rez-de-chaussée commercial, un bâtiment haut avec une majorité de grands logements, un bâtiment bas avec de plus petits logements.
La totalité des appartements dispose de balcons.
Les appartements des derniers niveaux sont des duplex avec
terrasses.Les deux volumes sont différenciés par des revêtements de façades distincts : la brique rouge pour le corps le plus petit, et la pierre blanche pour le plus grand.
Le toit des commerces est aménagé en jardin suspendu. La façade sur le parc reçoit une végétation grimpante.







