Maîtrise d’ouvrage :
Bouygues Immobilier
Maîtrise d’œuvre :
Christian Devillers Architecte
I2C, bet structure
Fluelec, bet fluides, thermique et environnement
Ouest coordination
Mission :
Mission complète de maîtrise d'oeuvre
Surface :
9 320m² sdp
Montant des travaux :
11,5 M€ HT
Calendrier :
PC 2009 > DAT 2011
Programme :
Bureaux
Le projet est implanté sur un îlot dans une situation stratégique au point de franchissement des voies ferrées qui ont longtemps marqué la limite entre le centre qui s’étendait jusqu’à la gare et les quartiers de faubourgs ou d’urbanisation moderne qui s’étendent au sud jusqu’au périphérique.
Depuis la gare, depuis le nouveau quartier au sud des voies ferrées, la façade sud du bâtiment apparaît comme le front urbain et comme la rive de l’espace ferroviaire. En contrepoint affirmé, un bâtiment haut (R + 8) vient marquer l’axe de l’Alma. Alors que les façades Sud et Ouest sont conçues pour être vues de loin, la façade sur le Boulevard de Beaumont s’identifie par une échelle et un rythme en rapport avec ceux de la ville traditionnelle. Cette façade « en peigne » est perméable, ouverte à l’espace public. Le cuivre, employé en couverture mais aussi comme matériau de façade contribue à l’unité de l’architecture et à l’identité du projet.
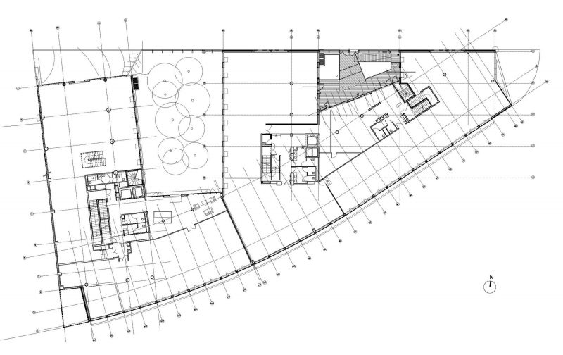
Le bâtiment doit concilier les impératifs de sa destination d’immeuble de bureau : divisibilité, accessibilité, flexibilité des plateaux et de confort : luminosité, lisibilité et diversité des espaces.
Le bâtiment, entièrement modulé sur la trame de 0,90m, peut être cloisonné ou utilisé en plateaux ouverts. La position des trois noyaux permet d’atteindre une divisibilité maximale pour ce type de bâtiment.
Les accès se font depuis le Boulevard de Beaumont en traversant les jardins patios plantés d’arbres et de végétaux en pleine terre.









