Maîtrise d’ouvrage :
Bouygues Immobilier
Maîtrise d’œuvre :
Christian Devillers Architecte
Terrel Rooke, bet structure
Bma, économiste
Oci, bet fluides
Van Santen & Associés, bet façade
Mission :
Mission complète de maîtrise d'oeuvre
Surface :
21 480m² sdp
Montant des travaux :
38,6 M€ HT
Calendrier :
PC 2003 > DAT 2006
Programme :
Bureaux
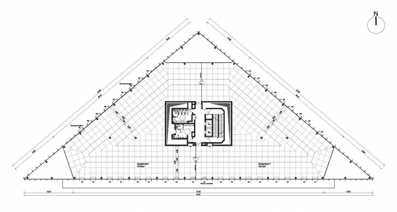
L’immeuble est situé sur un îlot de forme triangulaire, face à la station de RER La Plaine Stade de France. Implanté sur une parcelle qu’il occupe dans sa quasi-totalité, l’immeuble dialogue avec l’environnement direct. En particulier les hauteurs adoptées sont définies pour intégrer le projet à la volumétrie des autres constructions, en particulier les logements lui faisant face sur l’avenue Henri Rol-Tanguy.
La forme triangulaire du projet permet la création à chaque angle du bâtiment d’un jardin d’hiver, offrant un agrément visuel supplémentaire aux bureaux, mais aussi un élément architectural et urbain de qualité pour l’environnement proche. Ainsi, le bâtiment offre à la perception depuis la rue une transparence au niveau de chacune de ses pointes, complétée par un traitement paysager de celles-ci.
L’architecture est unitaire, offrant une identité forte au bâtiment tout en répondant aux spécificités de chaque façade. La conception des façades associe plusieurs préoccupations majeures, propres à ce type de programme, en particulier une réflexion globale sur la qualité des ambiances intérieures (thermique, éclairement, acoustique).
Le principe de distribution et de découpage est celui de compartiments d’une surface inférieure à 1000 m². Le noyau est compact afin de libérer au maximum les plateaux de bureaux. Il est au centre du bâtiment et est raccordé en rez-de-chaussée au hall d’entrée desservi à partir de la voie nouvelle.





