Maîtrise d’ouvrage
GPAM - Grand Paris Aménagement
Maîtrise d’œuvre urbaine
D&A architecture, urbanisme, paysage et infrastructures (Mandataire)
ATM : BET hydraulique urbaine
CONFLUENCES : BET biodiversité
AMO Développement durable : AIA ENVIRONNEMENT
Maîtrise espaces publics
Phase 1 : URBATEC (Mandataire) BET VRD / ARPENTERE Paysagiste
Phase 2 : AMT Paysagiste / INGETEC BET VRD / STUDIO VICARINI Concepteur lumière
Missions
Maîtrise d’œuvre urbaine de la ZAC - Coordination architecturale et paysagère
Plan directeur / CPAUPE / Fiches de lots
Secteurs d’étude
ZAC du Jardin des Facultés : 6.6 HA
Programmation
LOGEMENTS : 28 100 m² SP (environ 450 logements)
Dont logements en accession, logements en accession à prix maitrisés et logements sociaux.
RESIDENCES GEREES :
- 7250 m² SP : résidence pour personnes âgées
- 5000m² SP : résidence étudiante.
ACTIVITES :
- 4000m² de commerces et services en rez-de-chaussée
- 2000m² de centre aquatique d’environ
ÉQUIPEMENTS PUBLICS :
- 6600m² SP : Collège Pissarro reconstruit par le Département.
- 6500m²SP : Centre sportif en remplacement du gymnase communal Gilbert Noël.
- 750 m² d’équipement en RdC du lot I.
Durée des études : En cours
Durée de réalisation : 10 ans
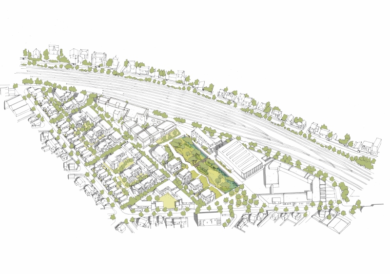
Enchâssé dans le tissu pavillonnaire et ceinturé par la voie ferrée, le site connaît depuis longtemps un rayonnement important. La proximité de la gare RER La Varenne-Chennevières, a motivé l’implantation dans les années 1970 de locaux universitaires mais aussi d’entrepôts commerciaux. Le Jardin des Facultés s’étend ainsi sur 6,6 hectares laissés en friche depuis le départ des facultés au début des années 2000. Jusqu’à peu, le site était encore occupé par le collège Pissarro et le gymnase Gilbert Noël qui ont tous deux été reconstruits dans le cadre du projet.
Le futur écoquartier conjugue activités, éducation, sport, jeunesse, intergénérationnel, services de proximité, commerces et logements diversifiés. C’est de la nécessité de réussir la couture urbaine avec le tissu urbain saint-maurien qu’ont découlé les principes fondateurs du projet :
- Un maillage de rues dont les dimensions et le tracé s’inscrivent en continuité des rues existantes.
- Le respect des matériaux et des teintes du tissu pavillonnaire proche.
- Des formes urbaines diversifiées avec un principe de transition des hauteurs et un plafond à R+3+Attique.
- Des vues sur les coteaux de la Marne valorisées.
- Un grand jardin d’un hectare accessible à tous les habitants du secteur.
Le projet s’organise autour de deux espaces publics majeurs ; le jardin de plus d’un hectare et le mail planté bordé de commerces en RdC. En respectant la biodiversité et en laissant une grande place aux circulations douces, aux venelles, aux voies piétonnes et au vélo, le Jardin des Facultés doit devenir un espace de vie privilégié pensé dans le sens d’un urbanisme à taille humaine. Différentes techniques alternatives de gestion des eaux pluviales sont mises en place dans le cadre des aménagements des espaces publics de l’écoquartier.













