Maîtrise d’ouvrage : SPLA Pays d’Aix Territoires
Maîtrise d’œuvre :
D&A, urbanisme, paysage / Ingerop, ingénierie en voirie et réseaux
Mission :
Etudes d’urbanisme et de maîtrise d’œuvre des espaces publics de la ZAC de la Constance / plan directeur / cahier des charges de la ZAC/ coordination architecturale et paysagère / maîtrise d’œuvre des espaces publics
Surface ZAC 100 ha, dont 23 pour le parc
Montant des travaux : 55 M€ HT dont 6 M€HT pour le parc
Durée des études : 2017 >> 2018
Plan directeur -> AVP
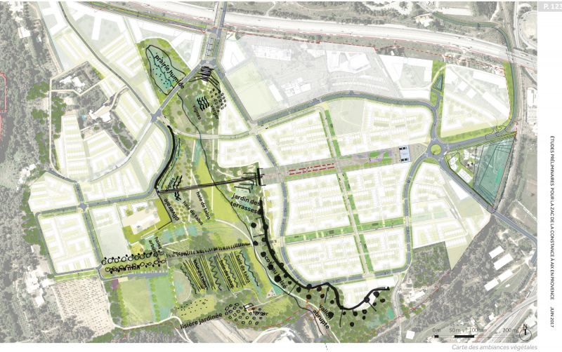
Le parc sera le cœur du futur quartier de la Constance. En prenant le parti de préserver le vallon, le développement de la ville se fait dans le souci de s’installer harmonieusement dans ce site, en dialogue avec lui. Pour cela, le projet a conforté les motifs existants du vallon et de sa ripisylve, des terrasses agricoles, des haies et des pentes boisées, des murs, des chemins bordés d’alignements d’arbres, de la Bastide de la Constance, afin de permettre différentes expériences de paysage. Une promenade, en surplomb le long du chemin de ronde, suit le rebord du plateau. Une passerelle franchit le vallon. La porte de Valcros ouvre des perspectives sur le parc et met en scène la bastide de la Constance. Un talweg est surligné par des bancs et des murs pour la mise en seine des vues sur la Sainte Victoire.
Le site de la Constance est un fragment préservé du paysage agricole, profondément culturel, faits d’usages et de pratiques qui ont façonné le vallon et les plateaux. Le parti d’aménagement allie à la fois sa préservation tout en installant des espaces de pratiques urbaines.
La mosaïque des milieux, leurs emboîtements et leurs localisations ordonnent les dispositions, entre les terrasses destinées à l’agriculture ou à la gestion des eaux pluviales, les plaines de jeux et les belvédères, les chemins qui s’écartent de la ripisylves ou qui pénètrent des pentes boisées. Le projet prévoit quelques retouches pour mettre en place les programmes, mais porte surtout sur la mise en place d’une gestion agricole et forestière.






