Maîtrise d’ouvrage : SAEM Val de Seine Aménagement
Missions : Maîtrise d’œuvre complète
Secteur d’étude : Quartier du Vieux Pont de Sèvres
Livraison : Janvier 2012
Montant des travaux : 3M€ HT (passerelle) et 1,2M€ HT (place)
Maîtrise d’œuvre :
D&A architecte et paysagiste
C&E ingénierie des structures / OGI - BET VRD / ON concepteur lumière
Longueur de la rampe : 90 m
Longueur totale de l’ouvrage : 125 m
Portée de la passerelle : 26m
Hauteur à son point le plus haut : 9 m
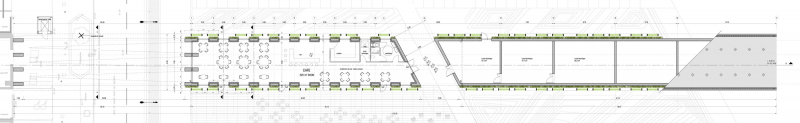
La passerelle Constant Lemaître est l’une des pièces majeures du projet de renouvellement urbain du quartier du Vieux Pont de Sèvre et l’une des principales liaisons d’accès au métro depuis le nouveau quartier construit sur les anciens terrains Renault.
C’est avant tout une rampe, d’environ 90m de long, qui permet de se hisser du niveau du terrain naturel au niveau de la dalle, 9 m plus haut. La passerelle, d’une portée de 26m, franchit la rue du Vieux Pont de Sèvres. C’est en réalité un pont, car bien que dévolu en priorité aux piétons et liaisons douces, l’ouvrage sert également aux véhicules de défense incendie.
Le volume disponible sous la rampe, d’une belle hauteur et d’une orientation favorable, offre une configuration idéale pour l’implantation d’un restaurant, ou d’un équipement public de proximité : plus qu’un ouvrage, c’est donc, aussi, un bâtiment, dont le beau volume intérieur trouve naturellement son extension à l’extérieur sur une large terrasse, au milieu des arbres de la place-jardin Georges Besse (malheureusement démoli depuis), dont les plantations grimpent en façade.
Le projet parvient à masquer sous son apparente simplicité les complexités induites par l’imbrication des programmes et donc des normes, formant une pièce urbaine composite qui brouille les limites entre ouvrage d’art, bâtiment et jardin.



